Nauka
Naczepy stają się luksusowymi przyczepami kempingowymi w pierwszym w Polsce koncepcie mobilnej sieci hoteli!
Good Spot to pierwsza w Polsce mobilna sieć hoteli zbudowana z wyremontowanych izotermicznych naczep chłodni znalezionych porzuconych w całej Polsce.
Podczas gdy niektórzy z nas są gotowi zaangażować się w mobilny styl życia, reszta z nas chce okresu próbnego. W odpowiedzi powstają mobilne hotele. Od pływających hoteli po przyczepy kempingowe, mobilne hotele inspirują wielu do kontynuowania własnego mobilnego stylu życia po kasie.
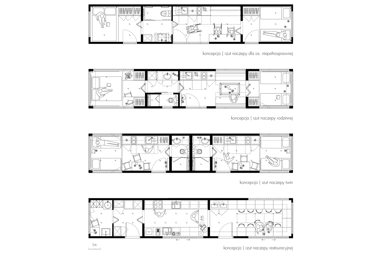
Zainspirowana mobilnym stylem życia i ruchem wiatru, wrocławska firma architektoniczno-aranżacyjna Znamy sie zbudowała Good Spot, pierwszą w Polsce koncepcję mobilnej sieci hotelowej, która zamienia izotermiczne naczepy chłodnie w nieużywane w mobilnych kamperach z dwiema sypialniami.
Po wyprawie kitesurfingowej w nadmorskim mieście Hel w Polsce, projektanci Znamy Sie postanowili stworzyć koncepcję mobilnej sieci hotelowej zaprojektowanej tak, aby goście mogli podróżować tam, gdzie wieje wiatr. Rozwijając hotelową koncepcję mobilności, Znamy sie najpierw pokryła każdą zniszczoną izotermiczną naczepę chłodnię zewnętrzną ze stali nierdzewnej podobną do przyczepy Airstream. Wewnątrz każdej przyczepy projektanci wyposażają obwód we wszystkie udogodnienia i elementy funkcjonalne, jakie można znaleźć w hotelach.
Zarezerwowanie obwodu każdej przyczepy dla udogodnień zapewniło więcej przestrzeni do chodzenia w pomieszczeniu, otwierając przestronną ścieżkę spacerową z jednego końca przyczepy do drugiego. Naczepy Good Spot otaczają wykonane na zamówienie drewniane meble, które zawierają dużo miejsca do przechowywania i siedzenia. Przyczepy Good Spot mogą pomieścić do czterech dorosłych osób. Na obu końcach przyczep Good Spot znajdują się dwie oddzielne części sypialne, w których duże okna pomagają wciągnąć naturalne światło, dodatkowo oświetlając śnieżnobiałe ściany wnętrza.
Poprzez Good Spot Znamy sie nadal angażują się w ekoturystykę, nadając nowy cel wyrzuconym naczepom i zapewniając poza siecią sposób na odkrywanie całego naturalnego piękna Polski. Mówiąc o tym Znamy sie mówi: „Nasz projekt, przygotowany we współpracy z Good spot, polega na upcyklingu, czyli podnoszeniu wartości materiału i zmianie przeznaczenia chłodni na pokoje hotelowe. Remontując przyczepę dajemy jej drugie życie! ”
Projektant: Spotkaliśmy się

„Piwny maniak. Odkrywca. Nieuleczalny rozwiązywacz problemów. Podróżujący ninja. Pionier zombie. Amatorski twórca. Oddany orędownik mediów społecznościowych.”









